|
3-8.螺杆式冷水机的搬运与安装
3-8a.储藏
螺杆式冷水机在安装之前的持续储藏需要采取下列预防措施:
1.做好电控柜以及操作屏的保护措施,以免碰坏。
2.将螺杆式冷水机存放在干燥、无震动的安全的地方。
3.至少三个月要核对冷媒回路压力一次,以验证冷媒充注有无变化。如发现异常,请予适当的维修部门和相应的本公司销售部联系。
3-8b.位置要求
3-8ba.考虑的噪音及防震
螺杆式冷水机应安装于远离噪音敏感区的区域并将减震垫装于机组的支架下面。减震垫建议采用氯丁二烯橡胶减震垫。此氯丁二烯橡胶减震垫可满足大多数安装要求。对于较高要求的安装,若需进一步详细的有关减震垫的资料,可咨询声学工程师。
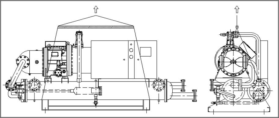
3-8bb.螺杆式冷水机外形尺寸及安装基础
提供稳固的不变形的安装台或具有足够强度和质量的混凝土基础以支撑机组的运行重量(包括安装完的接管和全部充罐的冷媒、油和水)。运行重量见表1,机组具体外形尺寸及安装基础见附件。
3-8bc.空间距离
在螺杆式冷水机的周围留有足够的空间以允许安装和保养人员不受限制地到达所有的维护部件。参见跟机图了解机组的尺寸。必须有足够的空间提供冷凝器和压缩机的检修。在机组周围,建议至少2米便于压缩机的维修和蒸发器的管道安装,并提供足够的空间以使电控柜门能够完全开启。参见图3-3所示的最小周围空间要求以供机组管道系统的维护、维修。

图3-3 机组操作、维修、安装预留空间
3-9.搬运和吊装
螺杆式冷水机组须用起吊的方式搬移。起吊的方法可参见图3-7,并参见表1的机组运行重量。

图3-7 吊装
▲警告!!为防止伤亡事故和设备的损坏,吊运设备的允许起吊重量必须大于每一台机组重量的足够的安全系数。
3-10.起吊程序
□拆去运输底板。可以将机组在一个与其拴紧的运输底板同样长度的光滑面上推移或拉运。
□每一条单独的吊缆或吊链都必须有足够的强度。
□定位:螺杆式冷水机定位后,去掉滑动垫木,在地基或垫板上,用气泡水平仪校准水平。 |