设为主页 加入收藏 网站地图
 
独创4S服务理念
全程专业化服务
360℃技术支持
 
您现在所在的位置是:首页 >> 服务与支持
服务与支持
风冷箱式冷水机组与水冷箱式冷水机工作原理介绍区分
来源:诺冰制冷   发布时间:2019-9-9

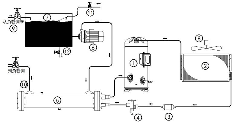
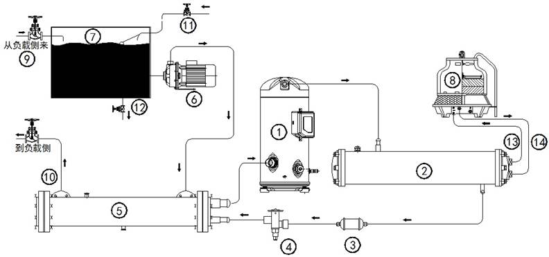
    箱式冷水机组的制冷系统都是一个逆卡诺循环的蒸汽压缩式循环系统;

下图为制冷剂循环原理图仅供参考,

由于机型、机种或客户要求不尽相同,实物可能与下图中的元件及走管方式会有所差异,以实物配管为冷;

下图制冷系统图仅为单制冷系统图,双机以上机型仅在水侧共用,制冷剂侧为彼此独立,两个系统完全相同;

3-1风冷箱式冷水机组工作原理

                                                    

 

 

 

 

 

 

 

 

 

说明:

1 压缩机       2 翅片式冷凝器  3干燥过滤器   4热力膨胀阀  5干式蒸发器

6 不锈钢水泵   7水箱           8轴流风机     9冷冻回水口  10冷冻出水口

11水箱补水口  12水箱排水口

3-2水冷箱式冷水机组工作原理图

说明:

1 压缩机       2 壳管式冷凝器  3干燥过滤器   4热力膨胀阀  5干式蒸发器

 

 

 

 

 

6 不锈钢水泵   7水箱           8冷却塔      9冷冻回水口  10冷冻出水口

11水箱补水口  12水箱排水口    13冷却出水品  14  冷却进水口

 

 
Copyright © 2006-2012 上海诺冰冷冻机械有限公司 All Rights Reserved  

沪公网安备 31011402003434号

备案号:沪ICP备13003097号-1
地址:上海金山高科园区山通路118号  电话:+86-21-39947826  传真:+86-21-39948029  
业务咨询 业务咨询
技术支持 技术支持
售后服务 售后服务
 
+86-021-39947826